1. ƯU ĐIỂM CỦA CỬA NHÔM VỪA TRƯỢT VỪA QUAY
- Cửa vừa trượt vừa quay giúp tiếp kiệm diện tích, không gian cho mặt tiền cũng như vị trí lắp đặt cửa. Khi sử dụng một phần cửa chúng ta sử dụng cánh trượt. Khi sử dụng toàn bộ cửa cánh trượt được ghép đôi với cánh mở quay (mở được 180 độ) mở hoàn toàn hết không gian
- Cửa vừa trượt vừa quay vận hành đơn giản, nhẹ nhàng, êm ái nhưng cũng rất chắc chắn, an toàn
- Cửa đẹp về hình thức: Thanh nhôm thiết kế thông minh, màu nâu và vân gỗ nổi bật, Tay nắm cách điệu, đẹp độc, lạ. Khóa cửa đóng mở rất nhẹ và chắn chắn
- Cửa sử dụng đa dạng loại kính từ kính cường lực, kính dán an toàn đến kính hộp cách âm, cách nhiệt
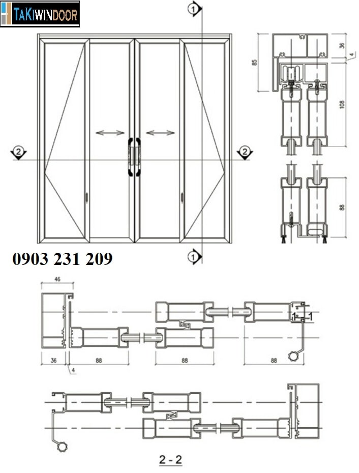
2. GIỚI THIỆU MẶT CẮT HỆ CỬA NHÔM VỪA TRƯỢT VỪA QUAY
- Hệ vừa trượt vừa quay hay hệ AGS100
- Bản nhôm rộng 80mm khi lắp vào khuôn cửa. Thông thủy cửa Cao khuôn cửa trừ 85mm còn rộng khuôn cửa trừ 92 (chưa tính phần khe silicon)
- Độ dày nhôm trung bình 1,6mm
- Màu nhôm sẵn có: màu nâu cafe, màu vân gỗ
- Hãng sản xuất: Zhongkai (Bao gồm cả thanh nhôm và phụ kiện đồng bộ)
- Kính sử dụng: Kính dán an toàn (6.38, 8.38); Kính cường lực (6mm, 8mm, 10mm); Kính hộp cách âm (5CL-6CK-5CL; 5CK-9CK-5CL)
- Qui cách: Phổ biến mở trong, có thể dùng mở ngoài theo yêu cầu nhưng tay nắm cửa vẫn nằm bên trong
- Cửa lắp đặt yêu cầu độ chính xác cao chính vì vậy khuôn cửa cũng được xây đúng kỹ thuật. Đo và lắp đặt bảo đảm khuôn cửa vuông, chỉnh cánh trượt đúng cao độ

Mặt cắt thanh nhôm hệ trượt quay Zhongkai
2. HƯỚNG DẪN GIA CÔNG, LẮP GHÉP CỬA TRƯỢT QUAY ZHONGKAI
Các bạn có thể tham khảo catalogue lắp ghép của nhà sản xuất như sau:

Catalogue sản xuất cửa trượt quay nhôm Zhongkai
3. ẢNH CÔNG TRÌNH CỬA NHÔM TRƯỢT QUAY

Cửa nhôm trượt quay 4 cánh có Fix trên làm cửa ngăn phòng

Cửa trượt quay 4 cánh màu vân gỗ cho cửa mặt tiền
Quý khách cần tư vấn lắp đặt, báo giá cung cấp thi công cửa nhôm trượt quay hệ Zhongkai xin vui lòng liên hệ
CÔNG TY TNHH TAKIWINDOOR VIỆT NAM
Email: noithattaki@gmail.com
Hotline: 0941078682 (Zalo)
MIỄN PHÍ VẬN CHUYỂN TRONG NỘI THÀNH ĐỐI VỚI NHỮNG ĐƠN HÀNG TỪ 1M2 TRỞ LÊN (ĐỐI VỚI KHÁCH HÀNG CẦN CUNG CẤP KÍNH). TÍNH PHÍ ĐỐI VỚI NHỮNG KHU VỰC KHÁC. Xin vui lòng liên hệ Hotline 0903 231 209
MỌI CHI TIẾT XIN LIÊN HỆ HOTLINE: 0941 078 682