1. ĐẶC ĐIỂM CẤU TẠO CỦA CỬA KÍNH CƯỜNG LỰC MỞ ĐẨY 1 CÁNH
- Cửa kính cường lực mở đẩy hay cửa kính cường lực mở quay, cửa kính thủy lực được cấu tạo bao gồm những bộ phận cấu thành như sau:
+ Kính cường lực: Chúng tôi sử dụng kính cường lực chất lượng cao như kính cường lực Việt Nhật do nhà máy Hải Long và Hồng Phúc tôi gia công hay còn gọi là kính cường lực Hải Long, kính cường lực Hồng Phúc
+ Phụ kiện cửa thủy lực: Bản lề sàn, Kẹp kính góc L, kẹp kính trên của cánh, Kẹp kính dưới của cánh, Khóa sàn, Tay nắm, Kẹp ty, ngõng chế ...
+ Nẹp sập giữ kính: Thường sử dụng nẹp sập nhôm 38 hoặc U inox áp dụng cho Kính cường lực 10mm, kính cường lực 12mm

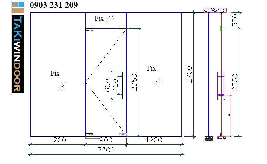
Bản vẽ đơn giản thể hiện cửa thủy lực mở đẩy 1 cánh
2. ƯU ĐIỂM CỬA CỬA THỦY LỰC MỞ ĐẨY 1 CÁNH
- Thiết kế và thi công đơn giản, nhanh
- Phù hợp với công năng sử dụng của cửa kính cường lực như: Tạo độ thoáng để trưng bày, không gian không bị che khuất như các loại cửa khác
- Sử dụng cửa đơn giản, vận hành nhẹ nhàng, có khóa khá an toàn
- Vật liệu kính cường lực dễ lau chùi, độ bền cao
- Khả năng ngăn bụi, chống ồn rất tốt, rất cần lắp đặt khi cần sử dụng điều hòa những ngày nắng nóng
3. ỨNG DỤNG CỬA CỬA THỦY LỰC MỞ ĐẨY 1 CÁNH
- Làm cửa thủy lực, vách kính cường lực cho mặt tiền nhà phố
- Làm cửa, vách kính tại các shop thời trang, nhà hàng
- Làm cửa liền vách kính cường lực tại các văn phòng, trung tâm thương mại khi muốn ngăn thành từng phòng nhỏ, tạo không gian riêng, ngăn tiếng ồn
- Làm cửa, vách kính cường lực tạo các khu công nghiệp
- Làm cửa đi thông phòng vào các phòng ăn, phòng khách cho nhà dân

Cửa thủy lực mở quay 1 cánh lắp trong khuôn gỗ (chúng tôi sử dụng nẹp sập kính vân gỗ và tay nắm màu gỗ tạo thẩm mỹ cho bộ cửa)

Thi công vách kính cường lực, cửa thủy lực 1 cánh làm vách ngăn văn phòng

Thi công cửa thủy lực mở quay 1 cánh cho nhà mặt phố hoặc cửa hàng, shop thời trang
4. LỰA CHỌN ĐƠN VỊ THI CÔNG VÁCH KÍNH CƯỜNG LỰC, CỬA KÍNH THỦY LỰC UY TÍN, GIÁ RẺ TẠI HÀ NỘI
Quý khách có nhu cầu lắp đặt vách kính cường lực, cửa kính cường lực đang tìm đơn vị thi công giá rẻ, đẹp và có uy tín tại thị trường Hà Nội. TAKIWINDOOR là đơn vị hàng đầu tự tin đem đến cho quý khách hàng sản phẩm chất lượng tốt nhất, dịch vụ chuyên nghiệp và giá cả cạnh tranh nhất
- Chúng tôi là đại lý kính (vừa thi công vừa cung cấp kính xây dựng) và là đối tác của các nhà máy gia công kính lớn tại Miền Bắc như Việt Nhật, Hải Long, Hồng Phúc, Á Châu, Thành Đồng, KaLa, ... Chính vì vậy giá đầu vào của TAKIWINDOOR luôn ở top đầu. Chúng tôi có bảng giá kính cung cấp của hầu hết các loại kính (Các bạn có thể tham khảo bảng giá cung cấp kính tại đây)
- Với đội ngũ kỹ thuật viên giàu kinh nghiệm sẽ đo đạc và tư vấn cho quý khách những mẫu thiết kế đẹp, các giải pháp thi công hợp lý. Bảo đảm chất lượng và thẩm mỹ nhất
- Các loại phụ kiện chúng tôi sử dụng đều là hàng chính hãng (mặc dù giá thành có cao hơn hàng trôi nổi, hàng Fake một chút). Tuy nhiên giá trị mà hàng chính hãng luôn đem lại lòng tin cho khách hàng, cho chúng tôi và cho các nhà cung cấp. Thời gian bảo hành và dịch vụ bán hàng của nhà cung cấp luôn tốt nhất. Các hãng phụ kiện cửa thủy lực hàng đầu như Hafele, Kinlong, Adler, VVP
- Chúng tôi luôn cam kết bảo hành, bảo trì theo đúng hợp đồng đã ký kết. Trong thời gian bảo hành nếu có bất kỳ lỗi kỹ thuật do chúng tôi lắp đặt đều được xử lý, sửa chữa và thay thế mà quý khách không mất bất kỳ chi phí nào.
MỌI CHI TIẾT VỀ SẢN PHẨM VÁCH KÍNH CƯỜNG LỰC, CỬA THỦY LỰC XIN VUI LÒNG LIÊN HỆ
CÔNG TY TNHH TAKIWINDOOR VIỆT NAM
Xưởng sản xuất: KĐT Thanh Hà Cienco 5, Hà Đông
Hotline: 0903 231 209; Email: noithattaki@gmail.com
MIỄN PHÍ VẬN CHUYỂN TRONG NỘI THÀNH ĐỐI VỚI NHỮNG ĐƠN HÀNG TỪ 1M2 TRỞ LÊN (ĐỐI VỚI KHÁCH HÀNG CẦN CUNG CẤP KÍNH). TÍNH PHÍ ĐỐI VỚI NHỮNG KHU VỰC KHÁC. Xin vui lòng liên hệ Hotline 0903 231 209
MỌI CHI TIẾT XIN LIÊN HỆ HOTLINE: 0941 078 682