1. CỬA KÍNH CƯỜNG LỰC MỞ QUAY được cấu tạo bởi kính cường lực, phụ kiện kính cường lực mở quay và khung giữ kính cường lực. Vì vậy giá thành của cửa kính cường lực được tính như sau:
Giá cửa kính = (chiều rộng x chiều cao) x đơn giá kính + phụ kiện lắp đặt + khung giữ kính
- Kính cường lực sử dụng làm cửa thông thường là kính cường lực 10mm và kính cường lực 12mm đơn giá tương ứng chúng tôi thi công và lắp đặt hoàn thiện là 650.000 đ/m2 và 700.000 đ/m2
- Phụ kiện cửa kính cường lực mở quay chúng tôi có nhiều sự lựa chọn cho quý khách: phụ kiện VVP, Adler, Huy Hoàng, Hafele, Hiwin, Kinlong với giá thành dao động từ 2.800.000 đ/bộ đến 7.850.000 đ/bộ (mỗi 1 cánh được tính 1 bộ)
| Vị trí | CHI TIẾT | Hãng VVP | Hãng Adler/Huy Hoàng | Hiwin - HongKong | Hafele - Đức |
| 5 | Bản lề sàn (80kg) | 1.250.000 | 1.300.000 | 1.450.000 | 2.800.000 |
| 4 | Khóa sàn | 250.000 | 550.000 | 550.000 | 700.000 |
| 1 | Kẹp kính L | 350.000 | 550.000 | 550.000 | 950.000 |
| 2 | Kẹp kính trên | 300.000 | 450.000 | 450.000 | 550.000 |
| 6 | Kẹp kính dưới | 300.000 | 450.000 | 450.000 | 550.000 |
| 3 | Tay nắm inox 304 | 350.000 | 650.000 | 650.000 | 2.300.000 |
| TỔNG 1 Bộ | 2.850.000 | 3.950.000 | 4.100.000 | 7.850.000 |
- Khung giữ kính đơn giản nhất là nẹp sập nhôm 38 có giá 35.000 đ/mét dài. Ngoài ra có thể sử dụng U inox, khung hộp inox (màu trắng bóng, xước, vàng, đen xước,đen mờ), khung nhôm hệ ..

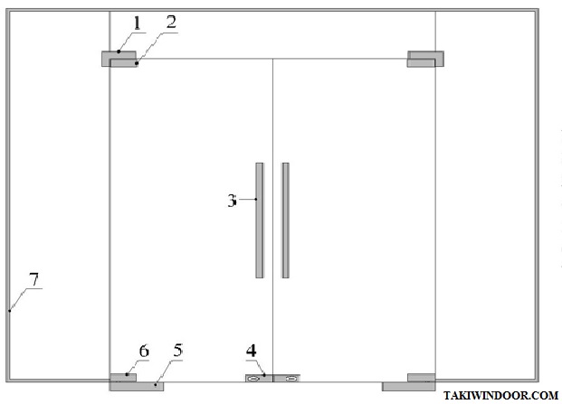
Cấu tạo cửa kính cường lực mở quay
Vị trí (1) là kẹp kính L bắt chặt vào tấm bên có tác dụng giữ tấm trán và tấm cánh
Vị trí (2) là kẹp kính trên của cánh
Vị trí (3) là tay nắm, hiện nay tay nắm rất đa dạng về kích thước và mẫu mã, quý vị có thể lựa chọn theo sở thích
Vị trí (4) là khóa sàn có thể lắp hoặc không tùy vào vị trí lắp đặt
Vị trí (5) là bản lề sàn, lựa chọn thông số bản lề sàn rất quan trọng bảo đảm đúng kỹ thuật và tuổi thọ của bộ cửa. Đây là vị trí quan trọng nhất trong bộ cửa. TAKIWINDOOR với kinh nghiệm lắp đặt hàng trăm bộ cửa hàng năm sẽ tư vấn cho quý khách lựa chọn chủng loại kính, thông số bản lề cho phù hợp để có bộ cửa kính cường lực đẹp, rẻ nhất
Vị trí (6) là kẹp kính dưới
Vị trí (7) là khung giữ kính, thông thường là nẹp sập nhôm 38
Phụ kiện cửa kính cường lực mở quay (cửa thủy lực)

Thi công cửa kính cường lực tại Hà Nội
Thi công cửa kính cường lực rẻ đẹp tại Hà Nội
2. PHÂN LOẠI CỬA KÍNH CƯỜNG LỰC
Cửa kính cường lực phân loại chủ yếu theo phương thức mở cửa gồm 4 loại như sau:
> Cửa kính cường lực mở quay
> Cửa kính cường lực mở trượt hay lùa
> Cửa kính cường lực xếp trượt
> Cửa kính cường lực trượt và xếp gấp
Phân loại theo vật liệu làm khung giữ kính
> Cửa kính cường lực khung nhôm
> Cửa kính cường lực khung sắt
> Cửa kính cường lực khung inox trắng bóng, vàng gương, đen mờ, trắng xước
> Cửa kính cường lực khung gỗ
> Cửa kính cường lực khung nhựa lõi thép
3. ƯU ĐIỂM CỦA CỬA KÍNH CƯỜNG LỰC MỞ QUAY
- Có tính thẩm mỹ cao đối với phần không gian cần lấy sáng
- Sử dụng kính cường lực và phụ kiện đồng bộ bảo đảm độ an toàn
- Khả năng cách âm, giảm tiếng ồn khá tốt đối với nhà, shop mặt phố
- Giá thành thấp hơn đối với cửa kính cường lực mở trượt hay lùa, cửa kính cường lực xếp trượt, cửa kính cường lực trượt và xếp gấp
- Khả năng mở thông thủy lớn hơn cửa kính cường lực trượt hay lùa, cho phép đưa ra kích thước thông thủy theo cung đẹp dễ dàng và chính xác
Qúy khách hàng cần hỗ trợ, tư vấn, báo giá thi công cửa kính cường lực tại Hà Nội xin liên hệ:
CÔNG TY TNHH TAKIWINDOOR VIỆT NAM
Hotline: 0941078682; Email: noithattaki@gmail.com
MIỄN PHÍ VẬN CHUYỂN TRONG NỘI THÀNH ĐỐI VỚI NHỮNG ĐƠN HÀNG TỪ 1M2 TRỞ LÊN (ĐỐI VỚI KHÁCH HÀNG CẦN CUNG CẤP KÍNH). TÍNH PHÍ ĐỐI VỚI NHỮNG KHU VỰC KHÁC. Xin vui lòng liên hệ Hotline 0903 231 209
MỌI CHI TIẾT XIN LIÊN HỆ HOTLINE: 0941 078 682